REQUEST A TOUR If you would like to see this home without being there in person, select the "Virtual Tour" option and your agent will contact you to discuss available opportunities.
In-PersonVirtual Tour

Christine Domina
Real Estate Smarts - Christine Domina
christine@realestatesmarts.ca +1(416) 873-4747$3,880,000
Est. payment /mo
UPDATED:
Key Details
Property Type Commercial
Sub Type Land
Listing Status Active
Purchase Type For Sale
Subdivision Jefferson
MLS Listing ID N13045164
Annual Tax Amount $9,471
Tax Year 2026
Property Sub-Type Land
Property Description
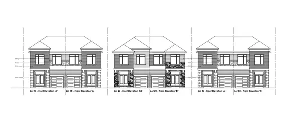
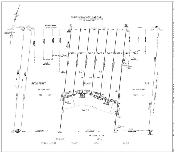
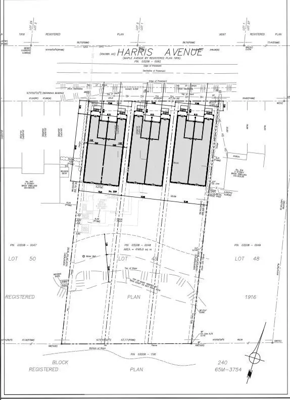
*ATTN BUILDERS AND INVESTORS* ZONING APPROVED, SERVICED SEMI-DETACHED DEVELOPMENT ** The property has aconditionally approved consent application for a 6-unit SEMI-DETACHED. Approval is progressing in the process of satisfying theengineering conditions (final stage). Once conditions are met, you can apply for a building permit. Buyers can move forward knowing theapplication is in an advanced stage, pending final steps. The lots are being FULLY SERVICED. Each unit has a side entrance to the basement.Units range approximately 2,700 sqft. in size, with long, deep, and back to the ravine. Extremely well located in the affluent & sought-afterJefferson community. A construction project is underway to provide an additional area on the north side of the Site. This premier locationoffers luxury living with convenient access to top-rated schools, parks, shopping, dining, and major transit routes. Mature trees and upscaleresidences surround the serene neighbourhood. There is a 2-story home with well water and septic on the property
Location
Province ON
County York
Area York
Exterior
Community Features Greenbelt/Conservation, Public Transit
Utilities Available Yes
Lot Frontage 155.0
Lot Depth 289.25
Others
Security Features No
ParcelsYN No
Read Less Info
Listed by HOMELIFE GOLCONDA REALTY INC.
GET MORE INFORMATION




